Архітектори розробили план забудови 86 гектарів території поблизу історичної частини міста Реклама
Команда архітекторів розробила детальний план забудови 86 гектарів території поблизу історичної частини міста. У ній вони передбачили створення масштабного парку довкола оглядового майданчика «Аврора», нові житлові квартали та запропонували доступно поєднати район із центром міста. Нещодавно Департамент урбаністики та архітектури оголосив переможців конкурсу на кращий детальний план території поблизу історичної частини міста розміром 86 гектарів.
Про це йдеться у матеріалі "ШПАЛЬТИ".
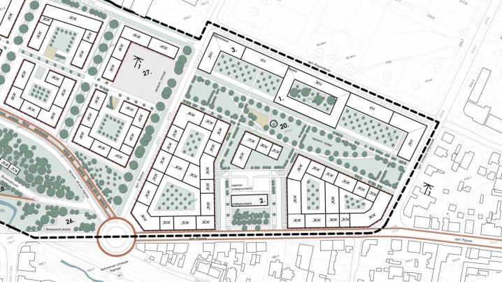
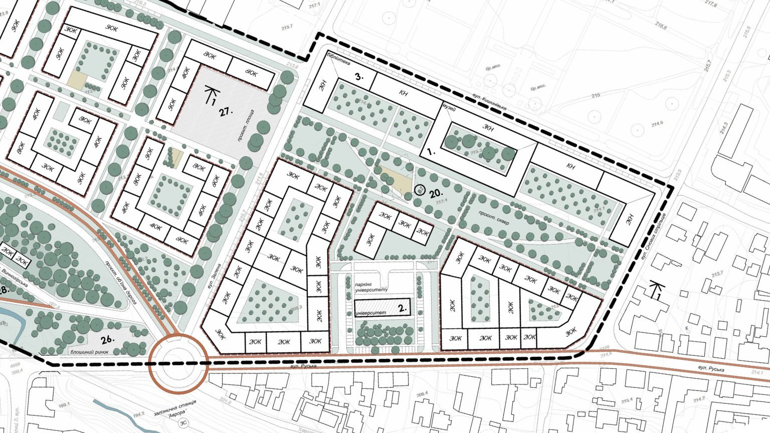
Найкращою визнали роботу архітекторів Олександра Скомаровського, Юлії Яценюк та Анни Шардакової. Вони, зокрема, запропонували, як поєднати вулиці Руську та Українських добровольців, створити кільце на перехресті із Зеленою, облаштувати парк поблизу оглядового майданчика «Аврора», збудувати нове житло та ефективно поєднати район з історичним центром міста.
Територія отримала назву «Нова Аврора». Головною ідеєю проєкту є гармонійно поєднати район з історичним середмістям, облаштувати умови для повноцінного життя у його межах, створити нове житло, а також розвантажити та упорядкувати наявні квартали.
За словами Юлії Яценюк, ділянка доволі складна, адже територія досить велика, з різним рельєфом, інфраструктурою, поверховістю забудови.
«Хотілося просто зберегти характер цієї території та в жоден спосіб його хамсько не змінювати», — додає Юлія Яценюк.
Одним із головних завдань конкурсу від міської ради було поєднати вулиці Руську та Українських добровольців. Для цього на перехресті Руської та Зеленої має з’явитися кільце, до якого прилягатиме і нова вулиця, що дозволить швидко дістатися до Українських добровольців.
Також окрему увагу приділили тому, аби пов’язати територію до центру міста.
«На жаль, дуже погано розвинута велоструктура. Ми запропонували дуже багато велодоріжок. Основні, власне, зв’язки з центральною частиною — через велосипедні та піші маршрути», — зазначила Юлія Яценюк.
Водночас блошиний ринок на перехресті архітектори залишили. Територія ринку буде мати прив’язку до нового кільця, а сам ринок «більш впорядкують».
«Можливо, він не має бути таким хаотичним, а з якимись більш традиційними речами. Але це чудове місце для ринку — воно буде привертати увагу та приваблюватиме відвідувачів», — каже архітекторка.
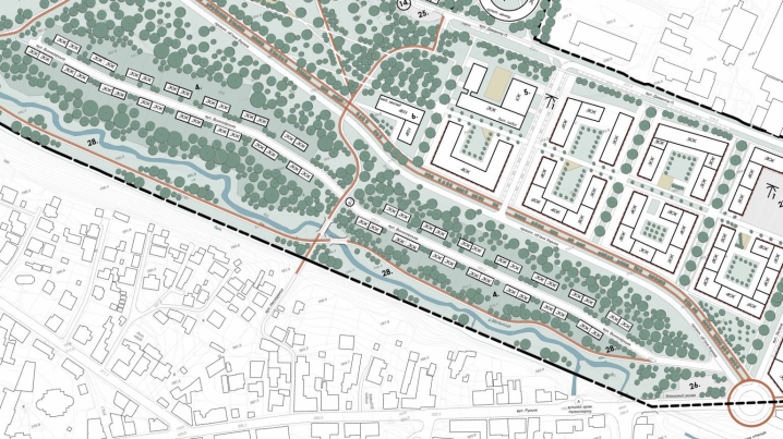
Однією зі значних переваг території є розташування ділянки на Горечівському пагорбі з характерним рельєфом та перепадами висот. Це дозволяє сформувати видові точки та оглядові вежі, з яких відкриватиметься панорама на історичний центр.
«У межах конкурсу декілька років тому зробили дуже класний проєкт оглядового майданчика «Аврора». Тоді автори дізналися його історію, а саме про те, що колись територія мала назву Винна гора, й передали це в архітектурі», — розповідає Олександр Скомаровський.
Крім рекреаційної функції, простір слугуватиме зеленим коридором від вулиці Українських добровольців до центру міста. Також зону доповнюватиме мультифункціональний культурний центр, що планують створити на вулиці Петера Деманта.
Крім великого парку, у районі загалом має стати більше зелених зон та насаджень.
Багато скверів проєктували на основі наявних зелених зон, але деякі простори доводилося формувати з нуля.
«Тут надзвичайно багато зелені, але вона не впорядкована та не пристосована до того, щоб нею користувалися мешканці», — зазначає Юлія Яценюк.
Нові квартали на пустирях та упорядкування наявної забудови
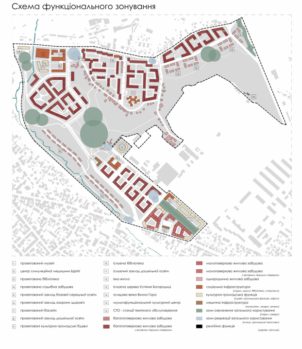
Згідно з проєктом архітекторів на території «Нової Аврори» мають з’явитися абсолютно нові квартали з багатоповерховими житловими будинками. Їх пропонують збудувати на колись промислових територіях цегельного заводу.
Нові житлові квартали одразу передбачені з активними першими поверхами, тобто з можливістю відкрити крамницю, кав’ярню, барбершоп тощо. Крім того, у плані закладені й освітні заклади для потреб жителів нових кварталів.
Так на детальному плані забудови є запроєктована школа, дитячий будинок, спортивний комплекс та громадський центр.
«Доволі часто люди, коли чують, що біля них має будуватися якийсь новий житловий будинок, сприймають це негативно. Але нове будівництво — це не лише поява нових будинків та мешканців. Це дає технічну можливість усунути якісь проблеми, пов’язані з проєктуванням уже наявних будинків, які неможливо вирішити інакше», — пояснює Олександр Скомаровський.
«Тут фактично неможливо зробити підземні паркінги чи бомбосховища. Тому ефективніше звести поруч житло, де буде підземний паркінг, щоб люди могли швидко потрапити в це укриття», — додає архітектор.
На думку архітекторів, збільшення населення району дозволить утримувати та розвивати соціальні й культурні установи.
«Щоб школи, культурні центри, музеї тощо не збанкрутували через п’ять років, має бути якась певна кількість людей, які постійно користуватимуться цими функціями», — вважає Олександр Скомаровський.
Команда також прагнула розвантажити внутрішні двори наявних кварталів. Для цього забрали зайві проїзди та стоянки, залишивши лише обов’язкові проїзди для пожежних авто та невеликі кишеньки для паркування.
Для мешканців нової забудови, а також для зменшення навантаження з прилеглих районів спеціально розширили паркінги.
Зелений ринок та новий музей біля Єврейського кладовища
Квартал Зеленого базару теж переглянули та реорганізували.
Так, наразі територія фактично складається з двох ринків: приватного та комунального. Їх планують зосередити в одному місці, аби локалізувати торгівлю та ефективніше використати простір.
Водночас комунальна частина Зеленого ринку на південь від кладовища має перетворитися на озеленений громадський простір з інтегрованим музеєм та бібліотекою.
«Був запит, що тут має з’явитися музейна функція. Тому залишити в цьому місці комунальний ринок було б складно. Музей із ринком важко поєднати», — зазначає Скомаровський.
Квартал на вулиці Зеленій створювали так, аби він природно вписався в історичне середовище й доповнив уже наявну забудову.
Однородинні будинки, вулиця Виногірська та робота з історичною забудовою
Вулицю Виногірську з особливою садибною забудовою архітектори Олександр Скомаровський та Юлія Яценюк вирішили зберегти.
«Ми підняли історичні карти та побачили, що там було багато таких однородинних будинків, які зараз, на жаль, втрачені. Тож у нашій концепції запропонували це відтворити, частково розбудувати та упорядкувати», – розповідає архітекторка.
Наступним етапом опрацювання плану цієї території має бути інвентаризація всіх історичних будинків.
Олександр Скомаровський вважає, що околиці міста проаналізовані на історичну цінність гірше, ніж центральна частина. Тому варто розділяти історичні будинки, що мають цінність та просто старі, що займають місце на комунальній землі, яке можна ефективніше використати.
Ефективне використання простору дуже важливе для кожного міста. Адже доволі часто — якщо немає чіткого планування — з’являється негативна тенденція, коли місто розростається.
Житло починають будувати на околицях, тож середмістя та близький центр не використовують.
«Старий будинок не завжди має історичну цінність. У довготривалій перспективі місто витрачає більше грошей. Громадський транспорт долає довшу відстань, внутрішні мережі важче обслуговувати, збільшується довжина доріг. І люди, замість того, щоб їздити на роботу 15-20 хвилин, витрачають уже півтори години», — каже Олександр Скомаровський.
Архітектори звернули увагу на те, що у районі, який вони досліджували, безліч вулиць навіть не мали тротуарів — дороги одразу межують з огородженнями будинків.
«Наочно цю проблему видно біля дитячого садочка, адже це, як на мене, має бути безпечним місцем», — каже Юлія Яценюк.
Детальний план забудови району «Нова Аврора» має пройти всі етапи погодження — і лише тоді його будуть втілювати в життя. Архітектори зазначають, що прагнуть діалогу з містянами та чекають реакції і відгуків на запропоновану ідею. 4
«Ми лише закладаємо пунктово, що в цій точці має бути житло, в цій – площі, парки тощо. І на основі цього все б мало ґрунтуватися. Як буде в результаті — побачимо».














